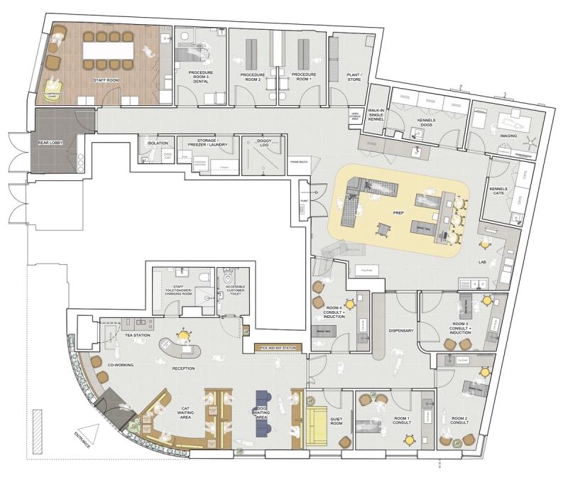
Hello Vet is the flagship location for a new veterinary clinic brand based in London. Reflecting Hello Vet’s mission, "Treating pets and people better," the clinic’s design plays a fundamental role in delivering on this promise.
As the inaugural clinic and central hub for Hello Vet’s envisioned network of local high-street practices, the design enables pet owners to conveniently access high-quality veterinary care, complemented by specialised facilities for more complex treatments.






















